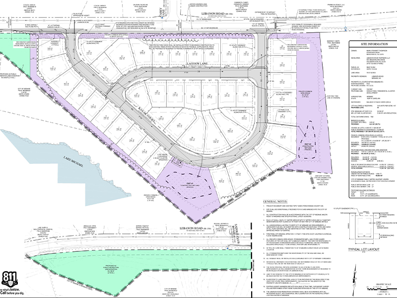
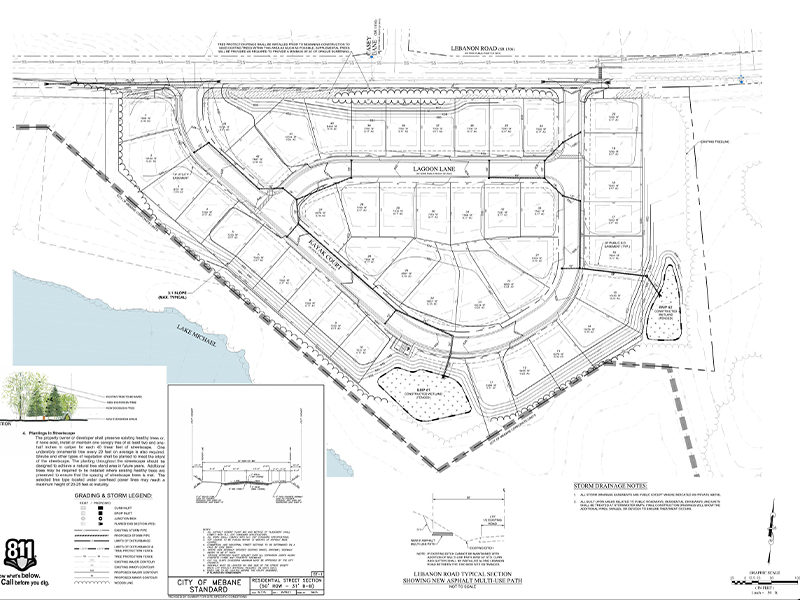
Our team provided project design and entitlements for the development of a 43-lot single family subdivision community in Mebane, North Carolina. We provided Surveying and Geotechnical Report services for project design and prepared Site Plan drawings for the Conditional Rezoning. Our team also managed the approval process with the City of Mebane, including Council approved. We prepared Construction Drawings and permit applications for water, sewer and erosion control, and provided construction survey staking and CMT/CI services during construction. Our team also provided final inspections, as-built drawings and certifications for closeout and acceptance of the project.




